KLE

Umbau eines Stallgebäudes zu Wohnen im Löwenberger Land


Das Bauvorhaben ist ein ökologisch und gestalterisches Leuchtturmprojekt für Wohnen auf dem Land, das die Wahrnehmung der regionalen Qualitäten des Naturraums Granseer Platte und die Zukunftsfähigkeit der Gemeinde Löwenberg betont.


Grundstück

In zentraler Dorflage östlich des Angers positioniert sich das zweigeschossige, in Bruchstein und Ziegel errichtete Stallgebäude als nördliche Grenzbebauung an der Kreisstraße K651. Westlich des Stalls steht das Wohnhaus, zurückgesetzt von der Straße und eingebettet in einen Garten. Östlich des Stalls befinden sich meterhohe Mauerreste eines Gebäudeabrisses. Das Grundstück ist geprägt durch eine großzügige, differenzierte Gartenlandschaft mit Grünflächen, Obstbäumen, Hecken, Nutzgarten, einer Wasserfläche und einem Brunnen.


Städtebauliches Konzept

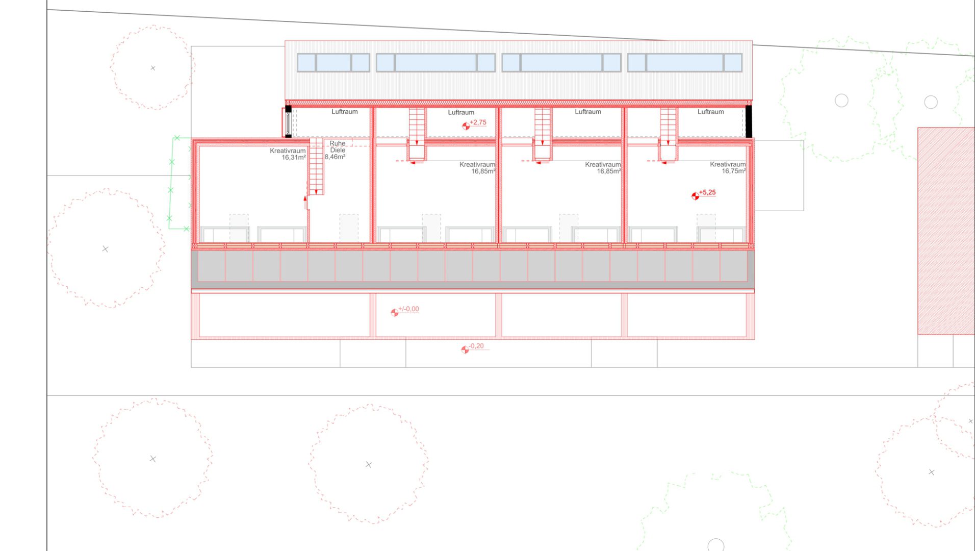
Das Konzept des Stallumbaus mit dem Ziel der Wohnraumschaffung wahrt den dörflichen Charakter des Ortes und stärkt die naturräumlichen und ökologischen Qualitäten des Grundstücks. Die rund 20m lange Scheune mit Remise wird in 4 Wohneinheiten mit jeweils 3 Ebenen aufgeteilt. Ein „Tiny House“ ist im nordöstlichen Bereich der vorhandenen Mauerreste geplant. Eine kleine Außensauna im südöstlichen Gartenbereich nutzt die schon vorhandene Infrastruktur eines Badeteiches und einer Retensionsfläche. Ein niedriger Fahrrad- und Geräteschuppen im nordwestlichen Bereich des Grundstücks ergänzt den Bedarf an Abstellfläche.


Erschließung

Die künftige Erschließung soll über eine Zuwegung vom Anger aus erfolgen. Hier befinden sich auch die notwendigen PKW-Stellplätze. Die Zufahrt an der Kreisstraße wird aufgegeben. Die Wohnungen werden gartenseitig erschlossen.


Gestaltung

Die Erdgeschoss-Sohle wird abgebrochen und tiefergelegt. Die nördliche Dachhälfte des Stallgebäudes wird erhalten und gedämmt, die südliche Dachhälfte wird erneuert und angehoben, um eine dritte Ebene zu realisieren. Vorhandene Tragkonstruktion, Zwischendecke und die markanten Fassaden des Stallgebäudes werden als wichtiger Teil des Gestaltungskonzeptes in größtmöglichem Umfang erhalten. Die durch eine intakte Bruchsteinmauer wesentlich geprägte Nordfassade wird erhalten, vorhandene Fenster und Fensteröffnungen werden als Lüftungsflügel erneuert. Um einen zukunftsfähigen Wärmeschutz zu erzielen, trennt eine Glasschiebewand im Innenraum den beheizten Bereich vor der nördlichen Wand mit Bruchstein-Sichtmauerwerk ab. Wird die Glaswand im Sommer aufgeschoben, profitiert der Raum von der kühlenden Steinwand. Der Bereich vor der südlichen Fassade wird bis zur Traufhöhe verglast und die ehemalige Außenwand als Sichtmauerwerk in den Innenraum geholt. Vorhandene Fenster, Türen und Tore in diesem Bereich werden geöffnet. Eine Pergola definiert die südlichen Terrassenbereiche. Zugemauerte Öffnungen an der West- und die Tür an der Ostseite werden geöffnet und mit verglasten Fenstertüren versehen.


Ökologisches Konzept


Energieversorgung

Die Grundversorgung Strom erfolgt über Solarkollektoren auf den südseitigen Dächern und über entsprechende Batteriespeicher. Die Wärmeerzeugung soll über eine Wärmepumpenanlage sichergestellt werden. Das Konzept sieht auch die Regenwassernutzung und eine grundstückseigene Kläranlage vor.


Zirkuläres Bauen

Materialien, die funktionell entfernt werden, (Holz, Ziegel, Beschläge, Glas), werden im neuen Kontext an sinnvoller Stelle wiederverwendet.


Freianlagen

Die ehemalige Zufahrt von der Kreisstraße wird geschlossen und mit einer Hecke bepflanzt. Erschließungswege werden mit Platten im Splittbett belegt. Im südwestlichen Gartenbereich entsteht ein unversiegelter Grill- und Spielplatz. Der vorhandene Badeteich wird zum Schwimmteich vergrößert und mit dem vorhandenen Seerosenteich als Vegetationszone verbunden. Retensionsgräben entlang der südlichen Grundstücksgrenze münden in die vorhandene Wasserfläche. Der Baumbestand wird erhalten und durch Pflanzungen ergänzt. Der vorhandene Brunnen wird mit einer Pumpe versehen und reaktiviert.


Auftraggeber: privat

Projektentwicklung: 2022